1. Accueil
  2. Achat
  3. Achat Appartement
  4. Achat Appartement SURESNES (92150)

Appartement Duplex à vendre 4 pièces - 82,31 m2 SURESNES - 92

Ref : 2093

670 620 €

  • Honoraires charge vendeur
Appartement Duplex à vendre - 4 pièces - 82.31 m2 - SURESNES - 92 - ILE-DE-FRANCE - Century 21 Arconsilium
Appartement Duplex à vendre - 4 pièces - 82.31 m2 - SURESNES - 92 - ILE-DE-FRANCE - Century 21 Arconsilium
Appartement Duplex à vendre - 4 pièces - 82.31 m2 - SURESNES - 92 - ILE-DE-FRANCE - Century 21 Arconsilium
Envoyer un message
Message
Envoyer ce bien à un ami

Description

À vendre Duplex F4 de 83 m² avec terrasse, balcon et jardin 670620€

Secteur bas de Suresnes T2 Belvédère Résidence neuve, fraîchement livrée .

Découvrez ce superbe duplex F4 de 83 m², situé au calme dans une résidence neuve , sécurisée et élégante de Suresnes. Fraîchement livré, ce bien rare bénéficie de frais de notaire réduits.

Au rez-de-chaussée, chambre , salle d'eau + wc lumineux s'ouvre généreusement sur un agréable jardin privatif agrémenté d'une terrasse et prolongé par les espaces verts de la copropriété, véritable pièce à ciel ouvert idéale dès les premiers beaux jours.

À l'étage, un grand séjour donnant sur une terrasse , 2 chambres profitent d'un balcon, une salle de bain , un toilette , nombreux placard ou d'espaces extérieurs offrant des vues dégagées sur les jardins de la résidence, assurant un cadre de vie paisible et verdoyant.
Un parking en sus 20000€

Surface : 83 m²
Type : Duplex F4
Extérieurs : Terrasse, balcon, jardin privatif
Prix : 670620 €
Emplacement : Quartier recherché, calme, proche des commerces, écoles et transports

Un bien rare sur le secteur, alliant confort moderne, calme et qualité de vie.
À découvrir sans tarder !

Localisation

Laissez-nous vos coordonnées pour obtenir la localisation

Envoyer

Afficher sur la carte :

Demander la localisation

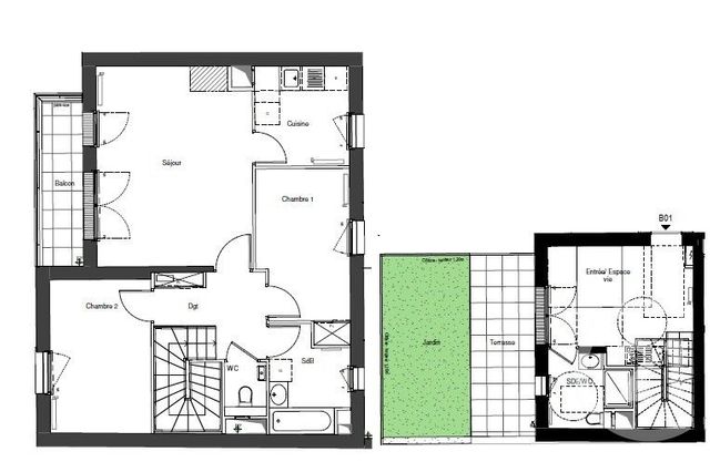
Vue globale

  • Surface totale : 82,3 m2
  • Surface habitable : 82,3 m2
  • Type d'appartement : Duplex
  • Étage : Rez-de-chaussée
  • Nombre de pièces : 4
    • Chambre (11,0 m2)
    • Chambre (14,9 m2)
    • Séjour (21,7 m2)
    • Chambre (10,3 m2)
    • Salle d'eau/WC (6,6 m2)
    • Salle d'eau/WC (5,3 m2)
    • Salle de bains (5,4 m2)
    • Dégagement (5,5 m2)
    • WC (1,6 m2)
    • Balcon (4,7 m2)
    • Terrasse (11,3 m2)
    • Jardin (15,4 m2)
  • Type de construction : Traditionnelle
  • Année construction : 2024

Équipements

Les plus

Terrasse

Jardin

Général

  • WC séparés
  • Chauffage : Collectif radiateur
  • Ascenseur
  • Balcon
  • Digicode
  • Videophone

À savoir

  • Charges / mois : 83 €
  • Taxe foncière : 2600 €

Copropriété

  • Nombre de Lots : 74
  • Charges courantes par an : 1200,0 €
  • Pas de procédure en cours

Les performances énergétiques

Non soumis au DPE

Envoyer à un ami

Envoyer

Envoyer un message :

Envoyer

Créer votre alerte

Rappel de vos critères de recherche :

Erreur dans les critères envoyés

Limite d'alertes atteinte

Cette alerte existe déjà

Cette alerte est déjà enregistrée pour cette adresse email. Vous continuerez à recevoir les biens correspondant à vos critères.

Une erreur est survenue

Merci de réessayer ultérieurement.

Votre alerte a été créée

Vous recevrez les biens correspondant à vos critères.

logo vente privées

48h

d’avance sur
le marché

Prenez un temps d’avance sur le marché en profitant gratuitement des Ventes Privées CENTURY 21

Si ce n’est pas déjà fait, créez votre compte client pour recevoir en avant-première des biens exclusifs, réservés à nos clients pendant les 48 premières heures suivant leur commercialisation.

Nos agences proposent régulièrement des biens comme celui que vous cherchez

Ne ratez pas une opportunité, on vous alerte en priorité !

Êtes-vous actuellement propriétaire de votre bien ?
Créer une alerte
Je souhaite être alerté
Voir les biens correspondants